
Hình ảnh thiết kế 3D tủ bếp gỗ xoan đào Anh Hoan - Hà Nội

Thêm 1 hình thiết kế 3D tủ bếp gỗ xoan đào Anh Hoan - Hà Nội

Hình ảnh lắp đặt sản phẩm tủ bếp gỗ xoan đào nhà anh Hoan

Kỹ thuật lắp đặt hoàn thiện tủ bếp

Từng bước hoàn lắp đặt hoàn thiện sản phẩm

Hình ảnh cánh gỗ xoan đào mộc chưa được phun sơn

Hình ảnh thùng tủ bếp gỗ xoan đào mộc chưa được phun sơn
Hình ảnh dùng máy chà cánh gỗ cho bề mặt được mịn

Các chi tiết đều được hoàn thiện tỷ mỷ

Hình ảnh mặt đá tủ bếp được cắt hoàn thiện

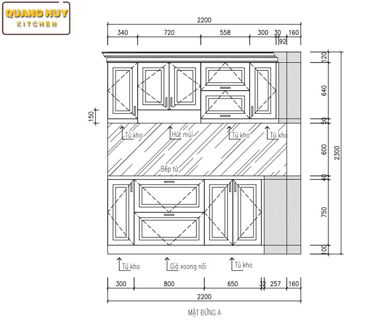
Hình ảnh thiết kế tủ bếp 2D mặt đứng A với hình ảnh tủ trên tủ bếp gồm tủ kho, hút mùi kích thước 720, Tủ dưới có lắp giá để xoong nồi kích thước 800, tủ kho sắp xếp 2 bên

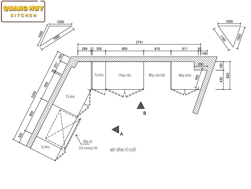
Mặt đứng B chiều chữ L còn lại của tủ bếp có tủ trên có giá úp bát 800, tủ dưới có sử dụng máy rửa bát kích thước rộng 610

Hình ảnh chi tiết mặt bằng tủ trên

Hình ảnh chi tiết mặt bằng tủ dưới
Báo giá tủ bếp gỗ xoan đào nhà Anh Hoan gồm

Báo giá tủ bếp gỗ xoan đào nhà anh Hoan
Sau khi báo giá sơ bộ cho khách hàng, Quang Huy Kitchen đến tận nhà để khảo sát, đo đạc mặt bằng thực tế cũng như tư vấn cho khách hàng trực tiếp và cụ thể nhất và không tính phí. Quý khách hàng sẽ được tư vấn về chất liệu, thiết kế tủ bếp sao cho phù hợp. Qunag Huy Kitchen lằng nghe chi tiết nhu cầu của khách hàng
Sau khi đo đạc thực tế và nắm bắt được nhu cầu của khách hàng, Quang Huy Kitchen sẽ lên bản thiết kế 3D chi tiết cho khách hàng để khách hàng theo dõi được tủ bếp có hình dáng, màu sắc như nào.
Thiết kế 2D giúp khách hàng biết được chi tiết kích thước tủ bếp gỗ xoan đào. Từng khoang từng chức năng chi tiết cụ thể. Tất cả các hạng mục thiết kế trên đều miễn phí cho khách hàng
Khách hàng sẽ được miễn phí lắp đặt tại nhà toàn bộ các hạng mục từ tủ bếp, đá, kính ốp bếp, các phụ kiện tủ bếp như giá xoong nồi, giá úp bát...Đội ngũ kỹ thuật bàn giao hoàn thiện cho khách hàng. Sau khi hoàn thiện thanh toán 50% giá trị hợp đồng còn lại.
1 lưu ý nhỏ là hiện tại Quang Huy Kitchen có xưởng sản xuất tại Hà Nội nên các công trình thi công được từ miền Trung trở ra phía Bắc.
Phụ kiện tủ bếp có kho ở Hà Nội, HCM, Đà Nẵng nên giao toàn quốc và đặc biệt giao ngay trong ngày với 3 thành phố lớn trên
Tham khảo thêm về tủ bếp gỗ xoan đào về giá và các công trình Quang Huy Kitchen đã triển khai
Tham khảo thêm các phụ kiện tủ bếp với đa dạng mẫu mã và chất liệu tại Quang Huy Kitchen
Tin nổi bật
Top sản phẩm bán chạy